Proyecto 140

Adeje - Tenerife

140 m2

|

2 Plantas

|

Año

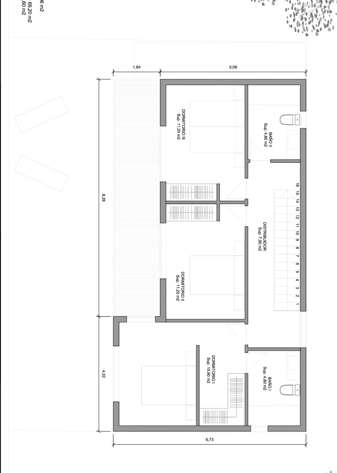
Esta preciosa vivienda unifamiliar de 140 m2, ubicada en la costa de Adeje, recibe la luz natural desde todos los ángulos gracias a sus grandes ventanales. Está construida en dos plantas, con una forma rectangular en planta baja y en planta primera, terrazas en voladizo y cubierta plana. Su fachada exterior está revocada en blanco con toques de rastrelados de madera.

El diseño minimalista y moderno de la vivienda, junto con los materiales utilizados para el acabado, hacen que los espacios sean acogedores y cálidos, permitiendo a través de grandes cristaleras que el usuario disfrute de las vistas que ofrece la isla. Distribuida en dos plantas, cuenta con un amplio salón-comedor, cocina integrada con una gran isla central, tres baños, tres dormitorios y grandes terrazas. Sus espacios se caracterizan por ser luminosos, modernos y muy acogedores, ideales para cualquier estilo de vida.

Location

Adeje, (Santa Cruz de Tenerife)

Tabla de contenidos

Vivienda terminada

Obra y construcción

Diseño y planos

¿Te gustaría una vivienda similar?