Proyecto 220

Finestrat - Alicante

220 m2

|

2 Plantas

|

Año 2020

Esta hermosa vivienda, ubicada en el municipio de Finestrat, a tan solo 8 minutos de Benidorm, se caracteriza por su hermosa fachada que combina los materiales característicos del estilo LUMEK, SATE blanco y detalles en madera.

Esta vivienda cuida al mínimo detalle sus calidades, destacándose por su comodidad y elegancia. Está orientada hacia el sureste para aprovechar sus vistas espectaculares a través de sus grandes ventanales en planta baja y primera. En la fachadaposterior, sin embargo, encontramos ventanas más pequeñas y más superficie opaca de fachada.

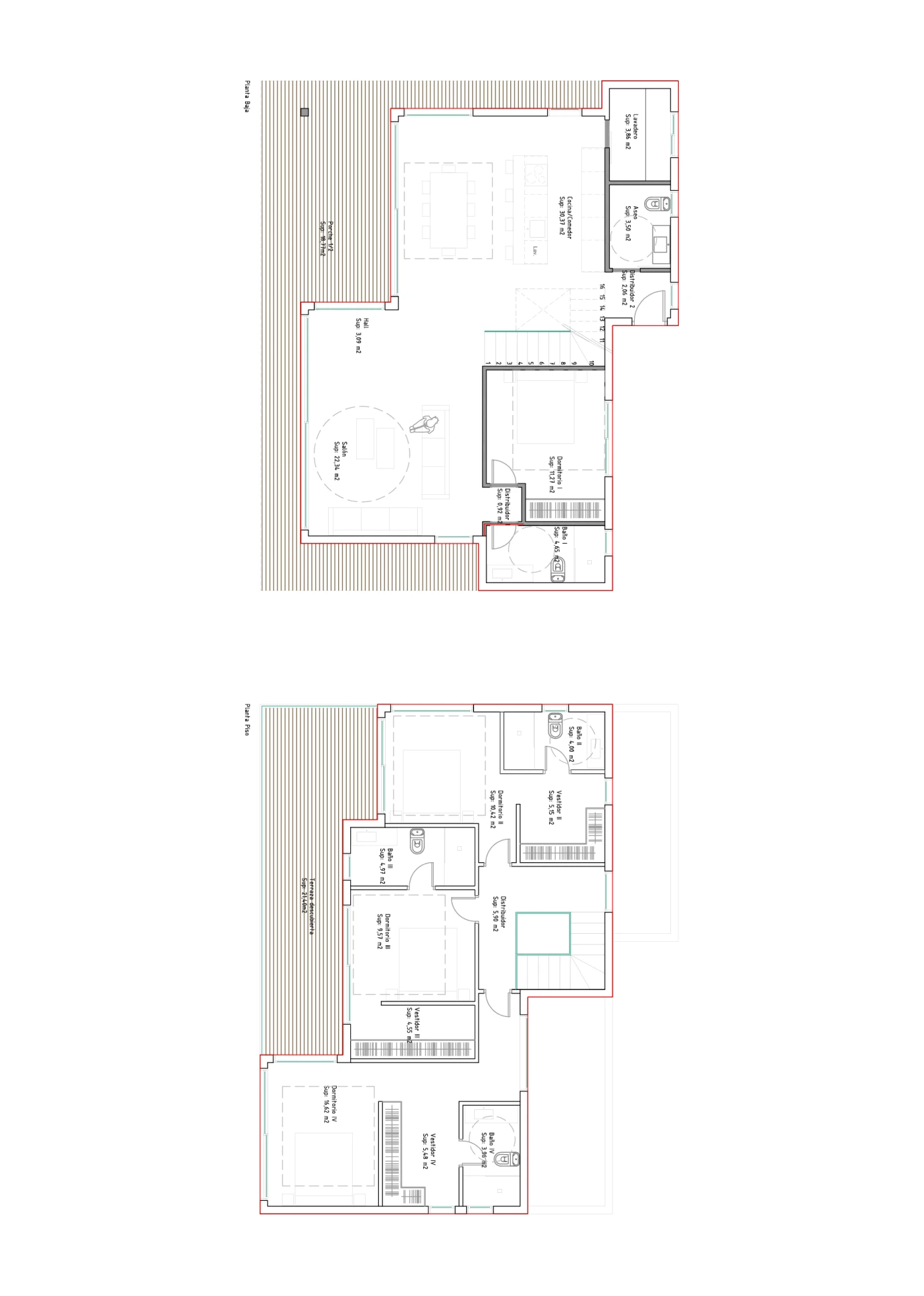
Con 200 m2 construidos, esta vivienda se distribuye en dos plantas. En la planta primera se encuentran las 3 habitaciones con sus respectivos vestidores y baños privados, mientras que en la planta baja se encuentra la zona de día, que incluye un gran salón, un comedor-cocina abierto, una gran terraza exterior y una piscina. Además, también se encuentra un pequeño dormitorio.

Es una vivienda perfecta para disfrutar de la tranquilidad del campo y la cercanía de la ciudad.

Location

Finestrat, Alicante

Tabla de contenidos

Vivienda terminada

Obra y construcción

Diseño y planos

¿Te gustaría una vivienda similar?