Con una superficie construida de 160 m², esta vivienda se caracteriza por su perfecta integración con el entorno natural que la rodea. La fachada, revestida en piedra con detalles en madera, es una muestra de la armonía lograda con el paisaje montañoso.
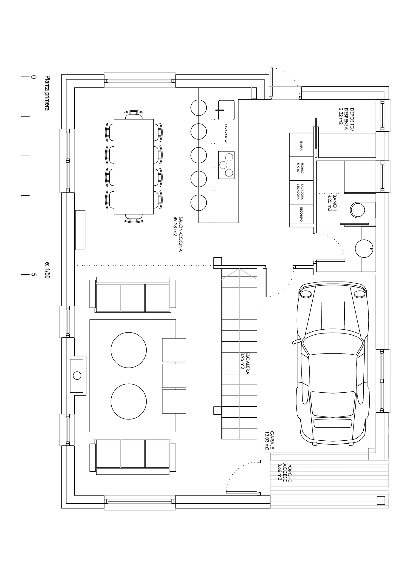
La planta baja cuenta con amplios espacios de área social, entre los que destaca un salón a doble altura que transmite una gran sensación de amplitud y luminosidad, invitando a relajarse y disfrutar de la tranquilidad del entorno. En esta misma planta se encuentra la cocina, abierta a este espacio, permitiendo disfrutar de agradables vistas mientras se comparten los momentos del día.
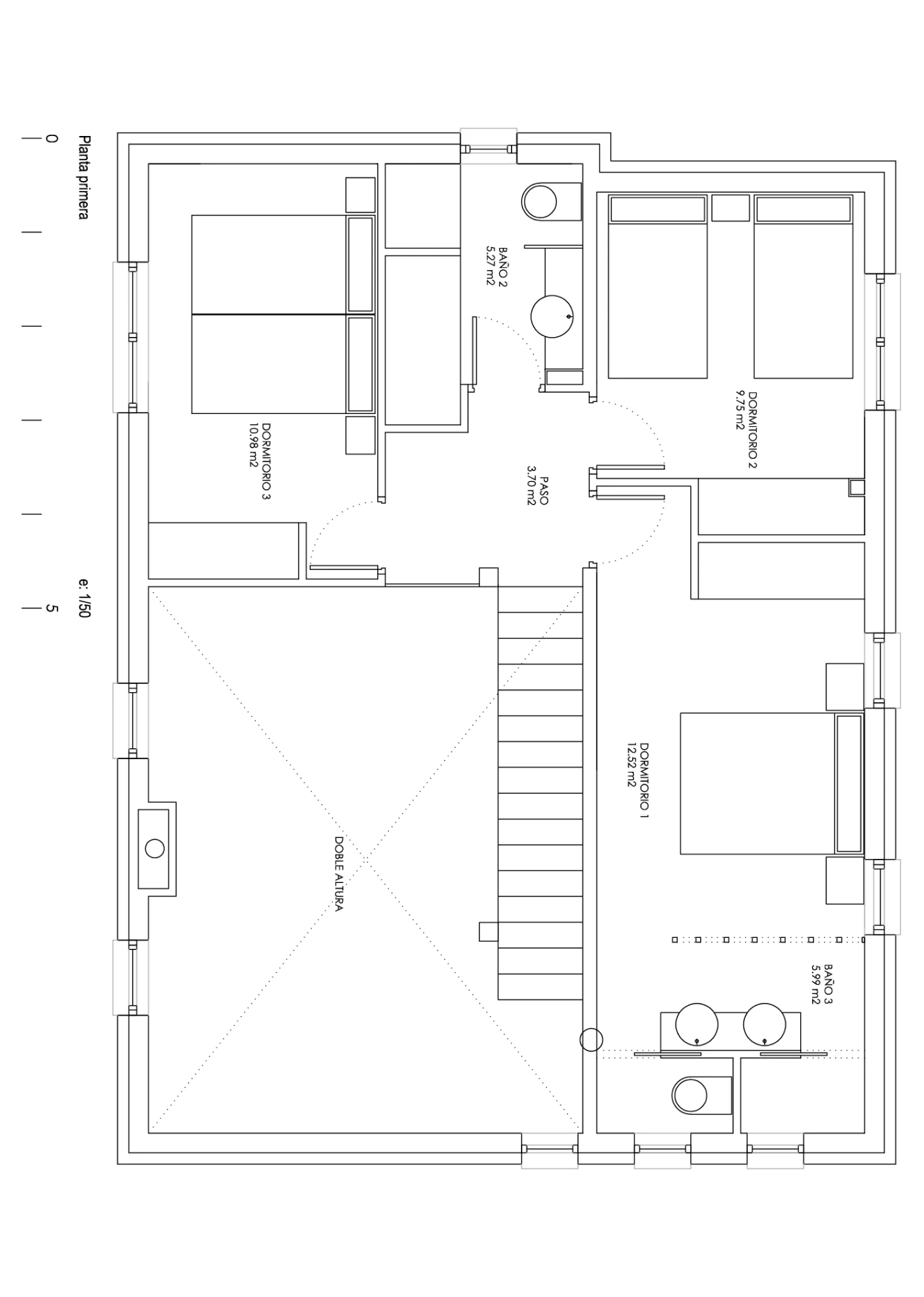
En la planta superior se ubican dos dormitorios dobles y una habitación principal con un amplio baño de diseño abierto. Los dormitorios, al igual que el resto de la vivienda, están cuidadosamente decorados y equipados.
Location
Hoz de Jaca (Huesca)
En LUMEK utilizamos cookies para mejorar tu experiencia, analizar el tráfico y mostrar publicidad personalizada según tus intereses.
Puedes aceptar, rechazar o configurar tus preferencias ahora o en cualquier momento. Más información en nuestra [Política de Cookies]