Proyecto 220

Masquefa - Barcelona

220 m2

|

2 Plantas

|

Año 2022

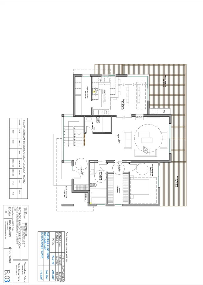
Esta hermosa vivienda de 220 m2 se encuentra en el municipio de Masquefa, en el interior de la provincia de Barcelona. Construida en dos plantas, cuenta con un diseño exterior espectacular, combinando el vidrio, un sistema de fachadas en SATE y detalles decorativos en porcelánico de madera.

En la planta baja nos encontramos con un amplio salón con salida directa a una hermosa terraza, una cocina totalmente equipada diseñada en U, un aseo de invitados, una habitación doble con vestidor y un precioso baño completo en porcelánico de color beige y una bañera integrada.

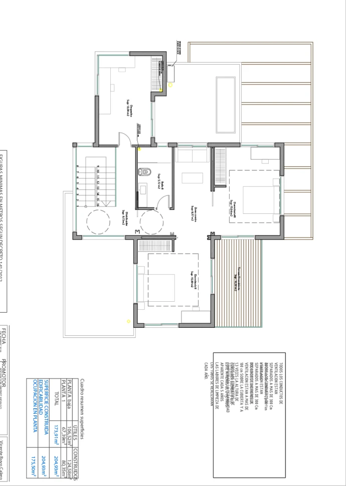
En la planta superior se encuentran dos dormitorios dobles con un baño común, una habitación individual con armario empotrado y una zona común de descanso.

Esta fantástica vivienda cuenta con una ubicación privilegiada, con excelentes vistas a un entorno natural abundante en vegetación, en el centro del municipio de Masquefa. Está equipada con todos los últimos avances en tecnología, modernos acabados y una decoración interior contemporánea que la hacen única.

Location

Masquefa, Catalonia, España

Tabla de contenidos

Vivienda terminada

Obra y construcción

Diseño y planos

¿Te gustaría una vivienda similar?